Preview

This is your website preview.

Currently it only shows your basic business info. Start adding relevant business details such as description, images and products or services to gain your customers attention by using Boost 360 android app / iOS App / web portal.

SAHANACIVIL 616e71088041af000132a43a Services https://www.sahanacivilcare.in

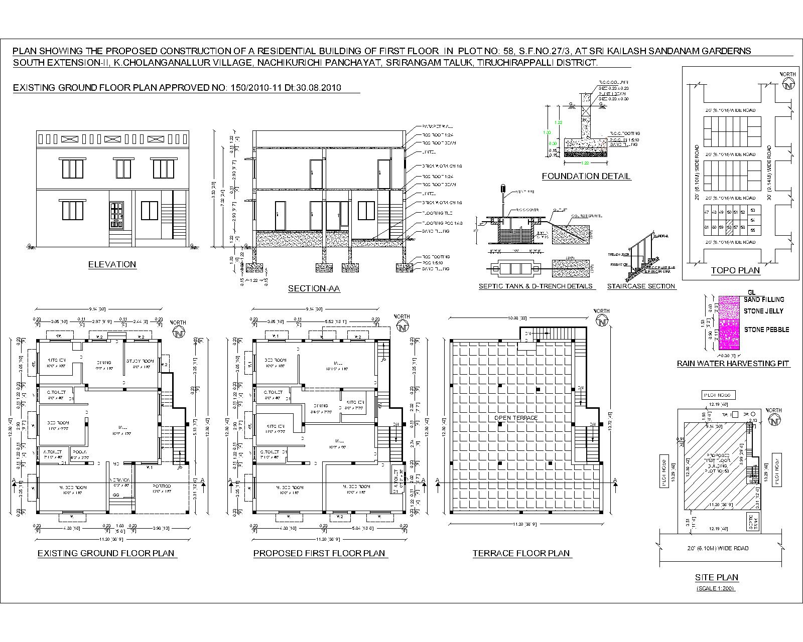
Residential building in woraiyur sahana civil care...

  • 2021-12-30T09:41:10

Residential building in woraiyur sahana civil care santhanam nagar

Residential building in woraiyur sahana civil care santhanam nagar

  • 2021-12-30T09:41:10

Have any question or need any business consultation?

Have any question or need any business consultation?

Contact Us
Chat with us